На главную страницу
   
 Пресс-центр
 Новости
 Публикации
 Избранные объекты
 Верификационные тесты
 Сертификаты и свидетельства
 Продукты
 ЛИРА®
 МОНОМАХ®
 ЭСПРИ
 Цены
 История версий
 Скачать
 Компания
 Контакты
 Партнеры




Сертификаты


Сертификат соответствия РФ № РОСС RU.СП15.H00511 (с 01.07.2012 по 30.06.2014)


Аттестационный паспорт программного средства Федеральной службы по экологическому, технологическому и атомному надзору.
Регистрационный номер паспорта аттестации ПС №193
Дата выдачи 26.05.2005 (срок аттестации 10 лет)


1
Вход
Логин   
Пароль
Запомнить меня на этом компьютере
  Забыли свой пароль?

  Главная Продукты ЛИРА®

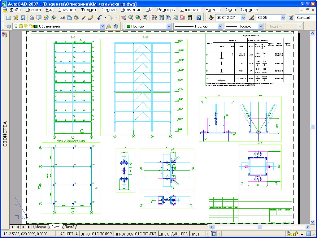
«ЛИРА. Система ЛИР-КМ»



    Система ЛИР-КМ предназначена для получения в автоматизированном режиме полного набора рабочих чертежей КМ.

    На основе информации импортируемой из ЛИР-ВИЗОР (конструктивная схема, рассчитанные и унифицированные сечения элементов, рассчитанные и унифицированные конструкции узлов).

    Производится построение монтажной схемы элементов, ведомости элементов, чертежей узлов, необходимых примечаний, спецификации. Пользователь имеет возможность управлять компоновкой чертежей, расположением на них схем, отдельных деталей, таблиц, примечаний.

    Система ЛИР-КМ является стартовой для организации конверторов ПК ЛИРА с другими графическими системами стальных конструкций (Bocad, RealSteel, AdvanceSteel).

    Система ЛИР-КМ предоставляет пользователю возможность расчета и проектирования с последующим вычерчиванием широкого набора узлов металлических конструкций, который непрерывно пополняются.

Вернуться в ПК ЛИРА



Версия для печати
Поиск по сайту
Поиск по сайту


   

Контакты


Украина г.Киев,
ул. Кадетский Гай, 6а, оф.209

Карта

тел./факс: (+38 044) 520-05-23

E-mail: lira@lira.kiev.ua

Copyright © 2003-2018 ООО "ЛИРА софт".
Все права защищены.
Полное или частичное использование материалов возможно только со ссылкой на сайт.
Вопросы к администратору сайта
Статистика сайта

сегодня всего
Просмотры 2661 112572445
Хосты 1381 4471781
Посетители 1871 17890560
Сейчас на сайте
28