News & Events
Products
LIRA®
MONOMAKH®
Version History
Download Centre
Publications
Price list
Company
Contact Us
Partners
What's New
MONOMAKH 4.5 R3 (release from June 2010)
Modifications to MONOMAKH 4.5 R3 (June 2010) in comparison with release R2 (Feb 2010)
MONOMAKH 4.5 R2 (release from February 2010)
Modifications to MONOMAKH 4.5 R2 (Feb 2010) in comparison with release R1 (June 2009)
MONOMAKH 4.5
What’s New in MONOMAKH 4.5 (in comparison with MONOMAKH 4.2)
MONOMAKH 4.2 (release from May 2007)
Modifications to MONOMAKH version 4.2 in comparison with release from February 2007.
MONOMAKH 4.2 (release from February 2007)
Modifications to MONOMAKH version 4.2 in comparison with release from November 2006.
MONOMAKH 4.2
What’s New in MONOMAKH 4.2 (in comparison with MONOMAKH 4.0)
MONOMAKH 4.0
What's New in MONOMAKH 4.0 (in comparison with MONOMAKH 3.0)
Version History
User Area
Username
Password
Remember me on this computer
Forgot your password?
Products
Monomakh
FOOTING module
MONOMAKH
®
Modules
BUILDING
BEAM
COLUMN
FOOTING
REWALL
SLAB
DIAPHRAGM
BRICK
SOIL
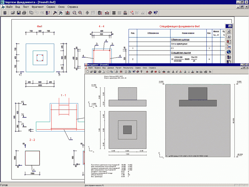
FOOTING
module enables you:
•
to import design model from
BUILDING
module or generate it in stand-alone mode;
•
to perform calculations of soil and footing;
•
to determine necessary reinforcement;
•
to arrange reinforcement and draw the footing.
Printable version
Search
Contact Us
of. 209, Kadetskiy Gay, 6-a St.,
Kiev 03048, Ukraine
E-mail:
international@lira.kiev.ua
Copyright © 2003-2011
LIRA Soft Ltd
.
All Rights Reserved.