Go to StartPage
   
 News & Events
 Products
 LIRA®
 MONOMAKH®
 Version History
 Download Centre
 Publications
 Price list
 Company
 Contact Us
 Partners





 
User Area
Username
Password
Remember me on this computer
  Forgot your password?

  Products Monomakh

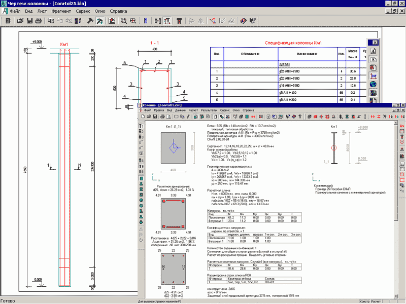
COLUMN module

MONOMAKH ®

Modules
BUILDING
BEAM
COLUMN
FOOTING
REWALL
SLAB
DIAPHRAGM
BRICK
SOIL



COLUMN module enables you:
    to import design model from BUILDING module or generate it in stand-alone mode. Column may be of different cross-section (rectangular, I-section, T-section, cross and angle sections, ring section, etc.);
    to analyse column according to ultimate limit states and serviceability limit states;
    to determine necessary reinforcement;
    to arrange reinforcement and draw the column.




Printable version
Search
Search
   

Contact Us

of. 209, Kadetskiy Gay, 6-a St.,
Kiev 03048, Ukraine

E-mail: international@lira.kiev.ua
Copyright © 2003-2011 LIRA Soft Ltd.
All Rights Reserved.